Work
SGGK Architekten
BDE Architekten
24(h) / 7(d) / 52(w)
Our House Spreitenbach
SBB Werkstadt Zürich
Health Care Center Kigali
(un)learning spaces
Kazanka Riverfront
Campus Etats-Unis Bibliothek
Ein Stadtfoyer in Lyon
Wohnen am Albert-Bodmer-Park
Wohnen in Amsterdam
About
Contact
David Zgraggen
Work
SGGK Architekten
BDE Architekten
24(h) / 7(d) / 52(w)
Our House Spreitenbach
SBB Werkstadt Zürich
Health Care Center Kigali
(un)learning spaces
Kazanka Riverfront
Campus Etats-Unis Bibliothek
Ein Stadtfoyer in Lyon
Wohnen am Albert-Bodmer-Park
Wohnen in Amsterdam
About
Contact
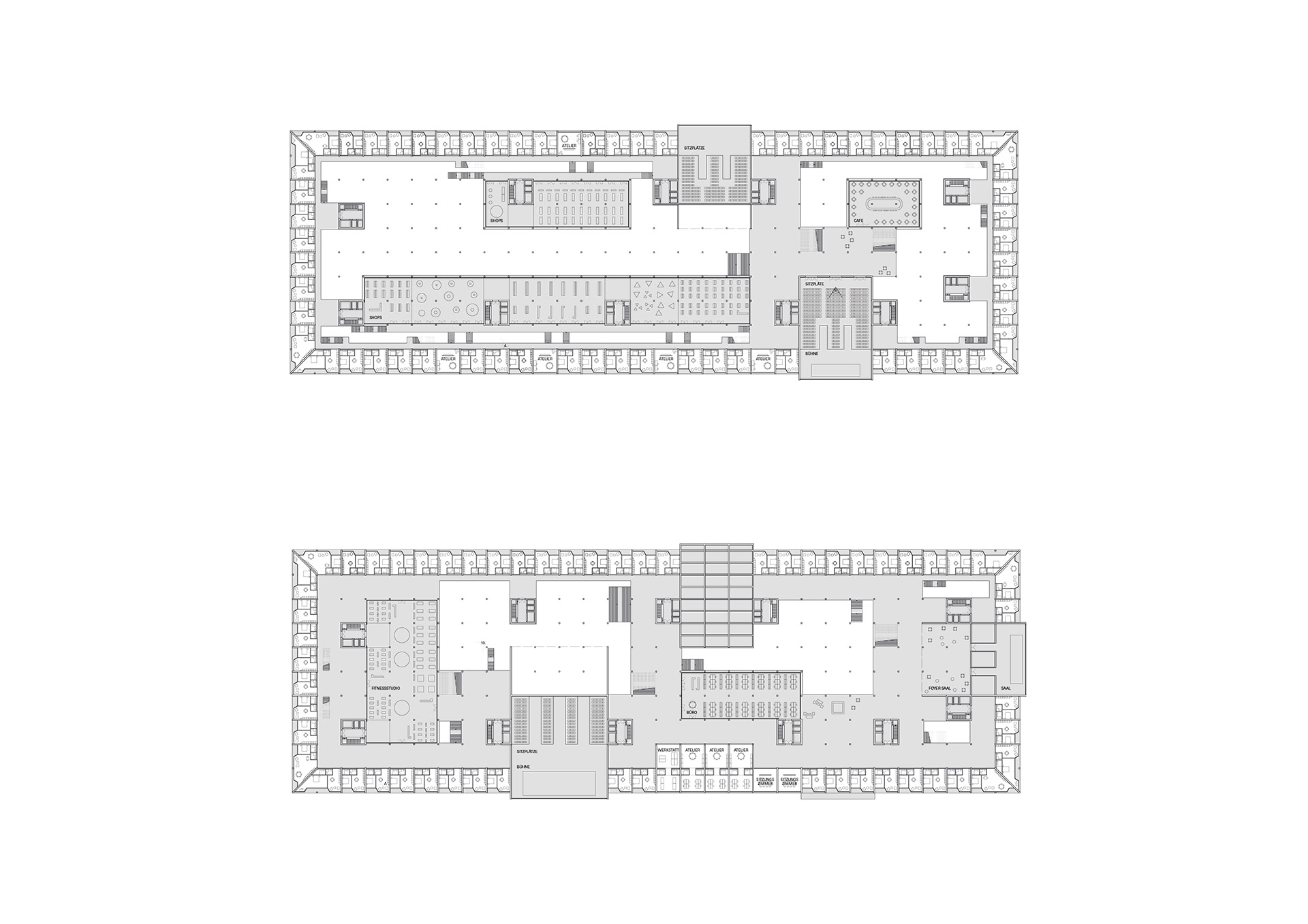
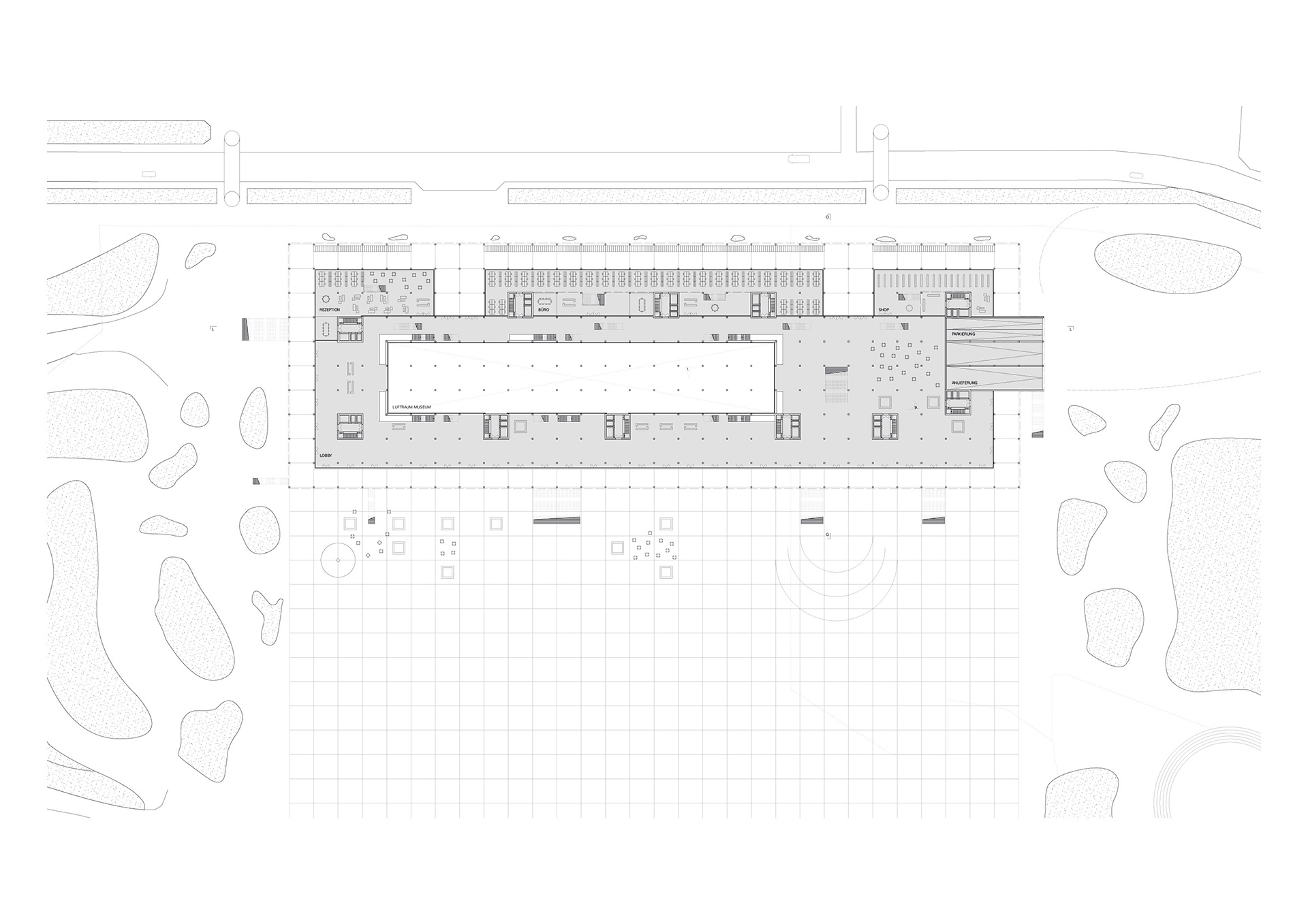
Kazanka Riverfront
ETH HS 2021
Professur Christian Kerez
↑
Back to Top